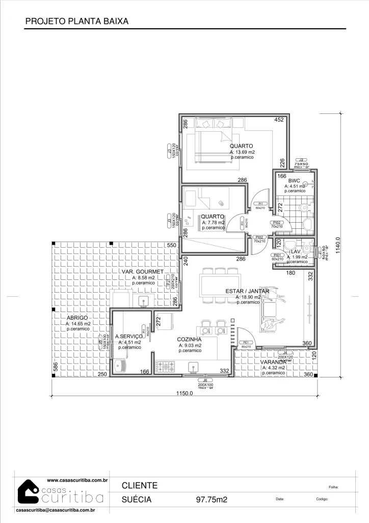
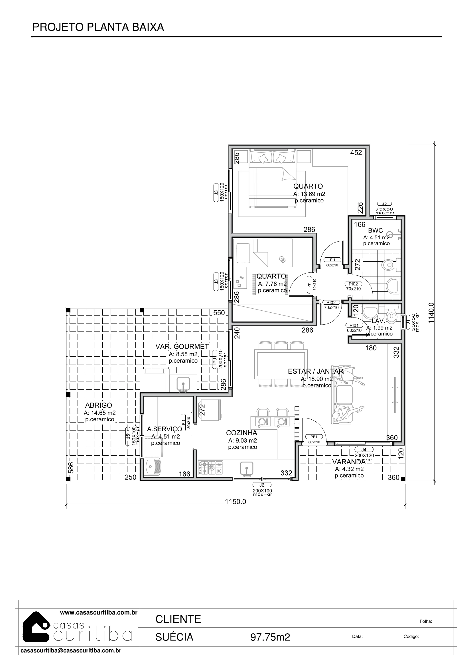
Suécia 97,75m²

Sistema Construtivo: Paredes Duplas
Modelo: Suécia
Área: 97,75m²
Pavimentos: 1
Quartos: 2
Banheiros: 2
Planta Baixa

Atenção: As imagens dos projetos apresentadas neste site são meramente ilustrativas. Os padrões e acabamentos podem variar de acordo com as personalizações escolhidas por cada cliente.

Sobre o sistema construtivo:

PAREDES DUPLAS

Casas com paredes de madeira duplas representam uma inovação promissora no cenário da construção sustentável. A escolha desse método construtivo não apenas contribui para a sustentabilidade ambiental ao utilizar madeira como material renovável, mas também oferece vantagens notáveis em termos de isolamento térmico, eficiência energética, durabilidade e estética.

A utilização de madeira certificada combate a exploração ilegal, promovendo práticas responsáveis de manejo florestal e reduzindo a pegada de carbono na construção civil. Além disso, as paredes duplas proporcionam um isolamento térmico eficaz, resultando em menor dependência de sistemas de aquecimento ou resfriamento, o que contribui para a economia de energia e a diminuição do impacto ambiental.

A resistência e longevidade do sistema construtivo são garantidas por técnicas avançadas de tratamento da madeira e a escolha de espécies robustas, enquanto a estética natural e a versatilidade do material permitem a criação de espaços únicos e acolhedores, adaptados aos diversos estilos arquitetônicos e preferências individuais.

PEÇA ORÇAMENTO POR WHATSAPP

Peça orçamento POR E-MAIL

Projeto: Suécia 97,75m²

Não encontrou o que deseja?

Compartilhe com seus amigos:
Facebook
WhatsApp
Pinterest