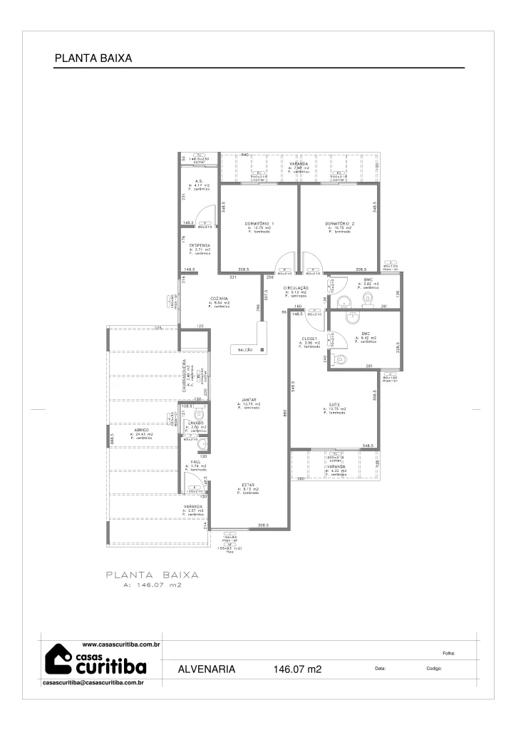
Alvenaria 146,07m²

Sistema Construtivo: Alvenaria Estrutural
Área: 146,07m²
Pavimentos: 1
Quartos: 3
Banheiros: 3
Planta Baixa

Atenção: As imagens dos projetos apresentadas neste site são meramente ilustrativas. Os padrões e acabamentos podem variar de acordo com as personalizações escolhidas por cada cliente.

Sobre o sistema construtivo:

ALVENARIA ESTRUTURAL

A Alvenaria Estrutural é um método de construção que utiliza blocos cerâmicos estruturais como principal elemento de suporte, dispensando o uso de estruturas adicionais como pilares e vigas. Esse sistema oferece vantagens em termos de rapidez na execução, redução de custos e aproveitamento eficiente do espaço interno.

A uniformidade e resistência dos blocos proporcionam estabilidade estrutural, tornando a Alvenaria Estrutural uma escolha viável para construções residenciais e comerciais, contribuindo para uma edificação sólida e eficiente.

PEÇA ORÇAMENTO POR WHATSAPP

Peça orçamento POR E-MAIL

Projeto: Alvenaria 146,07m²

Não encontrou o que deseja?

Compartilhe com seus amigos:
Facebook
WhatsApp
Pinterest